Technical Precision in Design
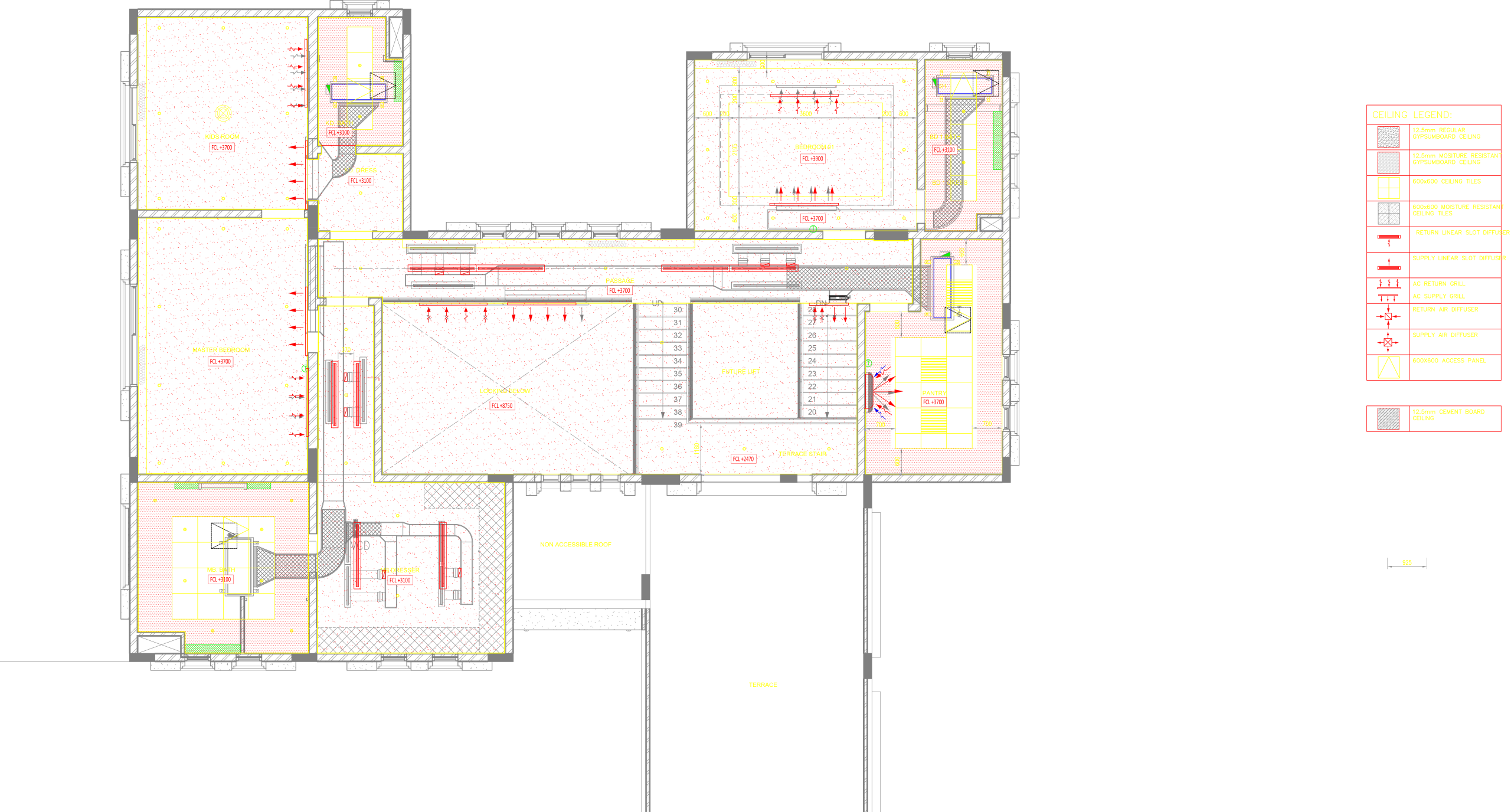
My drawing sets reflect the backbone of every project – translating vision into precise, buildable solutions. From concept sketches to detailed construction drawings, each sheet demonstrates my commitment to clarity, accuracy, and creativity.
Key Highlights:
Concept Development: Initial layouts and zoning diagrams that establish flow, proportion, and functionality.
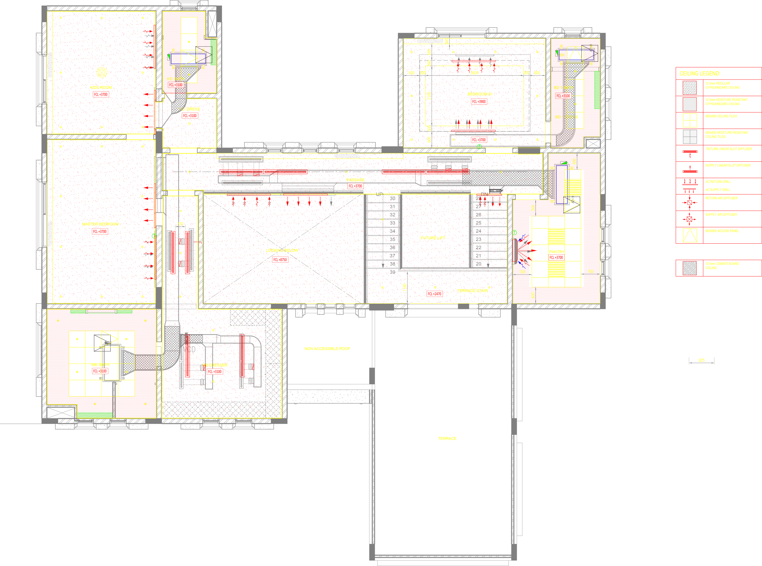
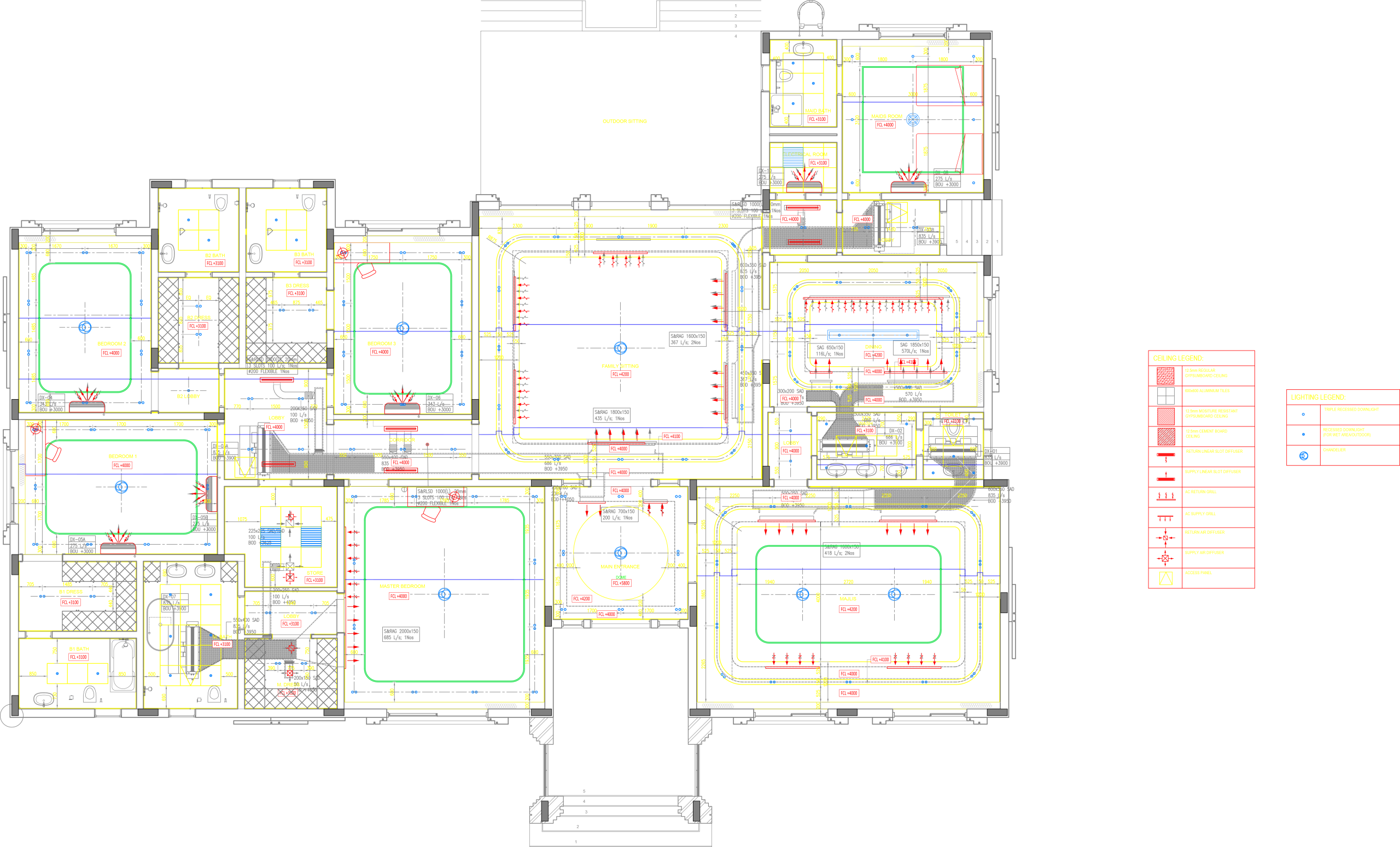
Detailed Plans: Floor plans, elevations, and sections presented with precision to guide execution on-site.
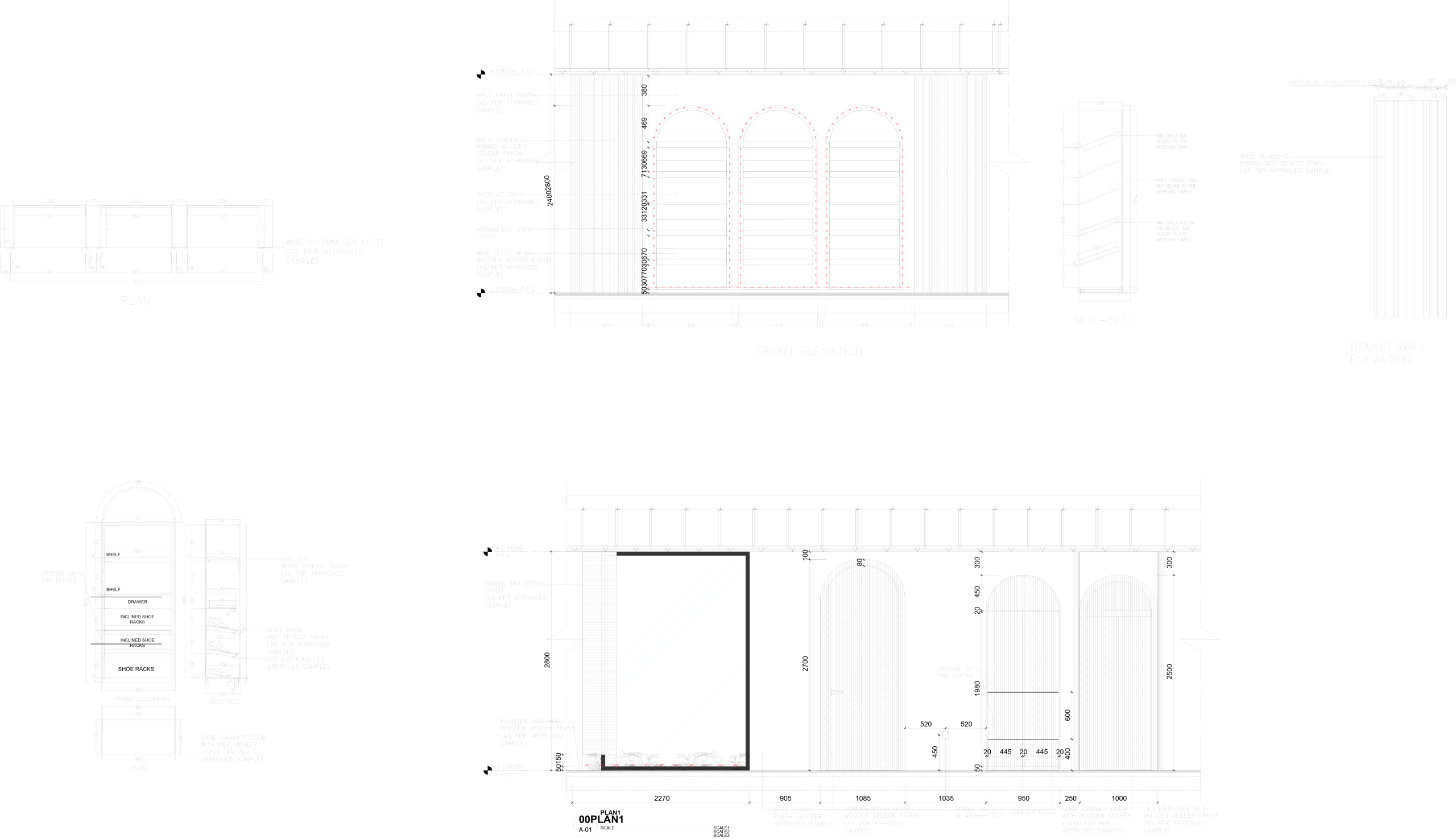
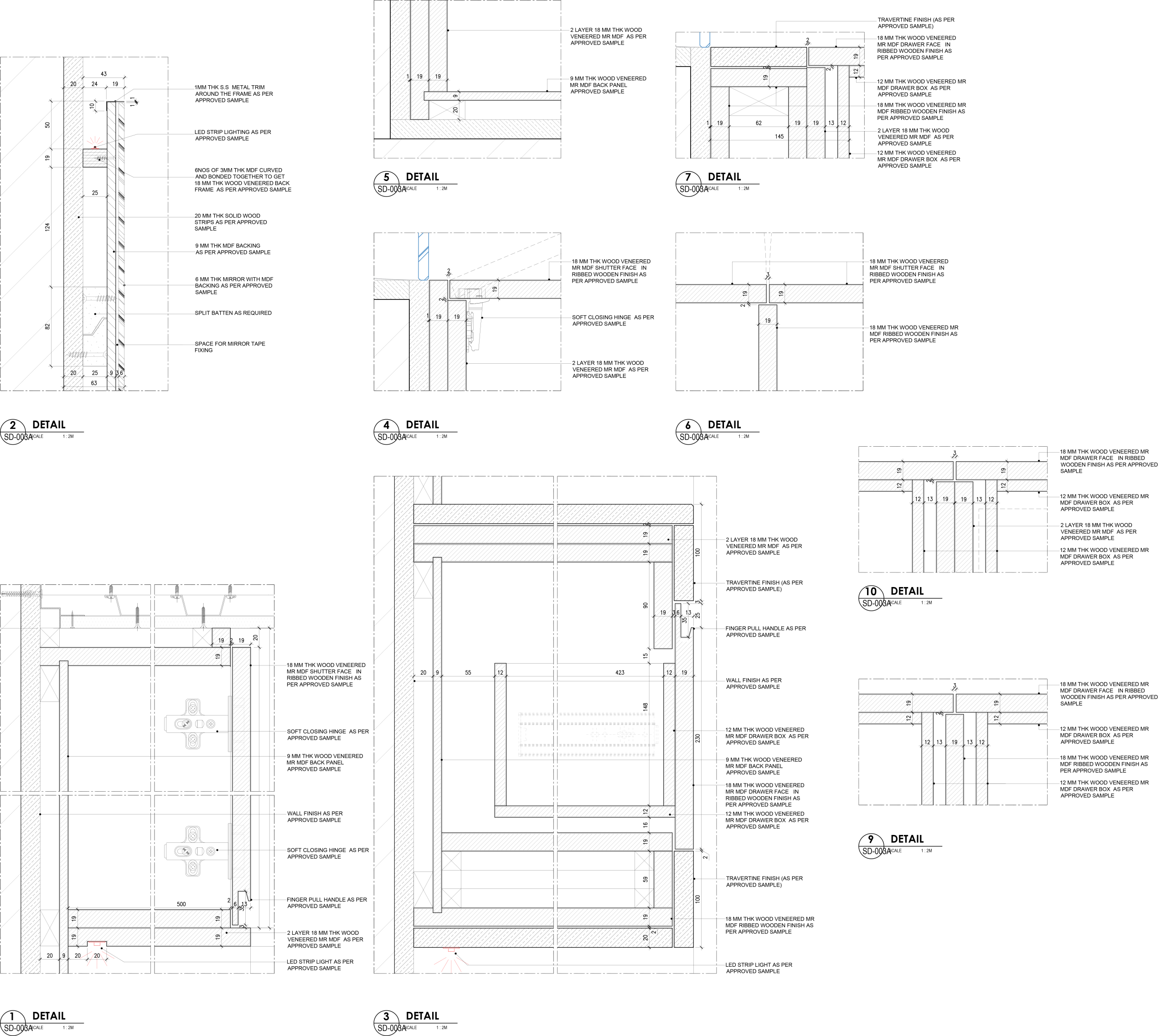
Material & Furniture Details: Annotated drawings specifying finishes, joinery details, and furnishing layouts for a cohesive outcome.
Technical Depth: Working drawings that balance design intent with practical considerations like services, lighting, and acoustics.
Graphic Quality: Clean linework, consistent annotations, and thoughtful presentation ensure drawings communicate effectively to clients and contractors alike.
These samples illustrate not just my technical competence but also how my designs move seamlessly from imagination to implementation.
